Продам двушку под коммерцию)
| Населенный пункт | Новокузнецк |
|---|---|
| Район города | Центральный |
| Улица | улица Доз |
| Номер дома | 7 |
Описание
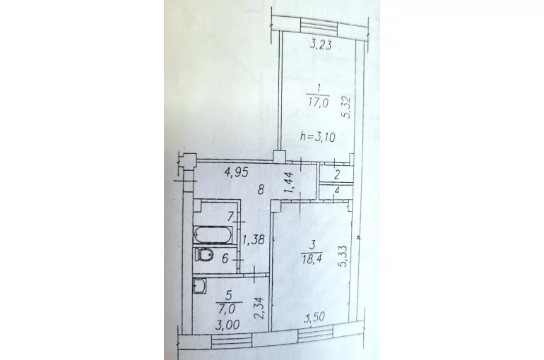
Центральный район, полнометражная квартира с раздельной планировкой, большой кухней, раздельным санузлом и просторным коридором.
Прямо из квартиры имеется выход в подвальное помещение, в котором возможно разместить мастерскую, зону хранения или использовать под любые ваши цели.
Квартира требует ремонта, есть где разбежаться Вашей фантазии, и сделать все на свой вкус. В соседнем дворе идет строительство нового жилого комплекса, благодаря чему район будет развиваться.
В шаговой доступности ледовый дворец "Кузнецкий лед", ТРЦ Планета., транспортная развязка с остановками общественного транспорта.
С удовольствием покажем в любое удобное для вас время) В собственниках двое взрослых людей, быстрый выход на сделку.
p.s. Этот вариант отлично подойдет под коммерческую недвижимость, 1 этаж, полноценный подвал и большая площадь способствует воплощению Вашей мечты!
| Сведения о недвижимости | |
|---|---|
| ID | 1924 |
| Ремонт | Требует ремонта |
| Балкон | Нет |
| Доля в квартире | Нет |
| Онлайн показ | могу провести |
| Статус Недвижимости Авито | Квартира |
| Право собственности | Собственник |
| Тип парковки | Открытая во дворе |
| Способ связи avito | По телефону и в сообщениях |
| Узаконена ли планировка | Нет |
| Есть ли право собственности | Есть |
| Комнат в квартире | 2 |
| Площадь, кв.м. | 59.5 |
| Жилая площадь | 35.4 |
| Площадь кухни, кв.м. | 7 |
| Этаж | 1 |
| Этажность | 3 |
| Материал стен | Кирпич |
| Стоимость | 4 000 000 руб. |
















